2 huurwoningen gevonden
Wierden
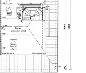
6 kamer huis van 158 m² te huur in Watergang 18, Zuidbroe...
Gelegen in Wierden ligt deze karakteristieke en ruime won...
Almelo
Per direct bieden wij meerdere woningen aan in Almelo op ...
Ruime eengezinswoning in de kindvriendelijke en nette woo...
Vroomshoop
Per direct bieden wij meerdere woningen aan in Vroomshoop...
Zenderen
Te huur: 1 Startersappartement in Zenderen! Adres: Hoofd...
Schitterende hoekwoning in de kindvriendelijke woonwijk ...
Biezenstraat, Almelo, € 1200,- exclusief g/w/e. Gelegen ...
Comfortabel gerenoveerd, stijlvol driekamerappartement in...
Vriezenveen
Gestoffeerde hoekwoning met tuin in Vriezenveen. Op zoek...
Te huur verrassende ruime eengezinswoning centrum Almelo ...
3 kamer appartement van 70 m² te huur in Hofkampstraat 54...
Luxe gemeubileerd 2-slaapkamer appartement beschikbaar bi...
Rijssen
4 kamer appartement van 90 m² te huur in Bouwstraat 14, K...