Appartement te huur: Willem de Zwijgerstraat 8-D 3043 VD Rotterdam

Willem de Zwijgerstraat 8-D, Overschie, 3043VD, Rotterdam

  • Appartement
  • |
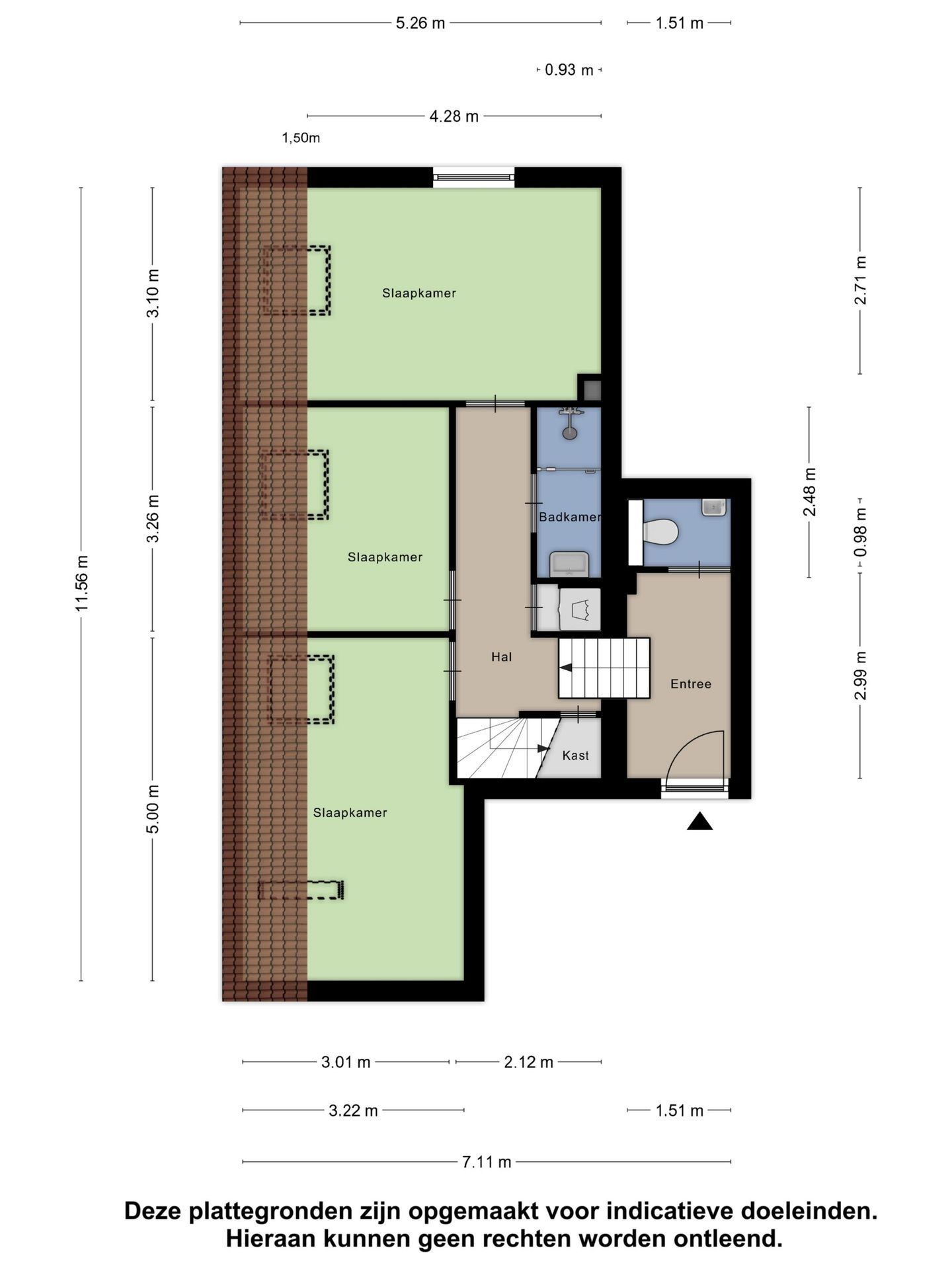
  • 117 m²
  • |
  • 4 kamers
  • |
  • 3 maanden geleden

Laatste scan: 2 uur geleden info

Dagelijks bekijken pictogram1 weergaven afgelopen 24 uur

Stel een vraag

Over deze woning

Meld je aan om alle foto's en details van deze huurwoning te zien
Registreer nu

Welkom bij je nieuwe toevluchtsoord in Willem de Zwijgerstraat 8-D, Overschie, 3043VD, Rotterdam! Dit moderne 4-slaapkamerappartement biedt een stijlvolle en gezellige leefruimte. De open indeling is perfect voor entertainment en de strakke keuken is uitgerust met hoogwaardige apparatuur. Dankzij de toplocatie bevind je je op slechts een steenworp afstand van de beste restaurants, winkels en uitgaansgelegenheden van de stad. Dit appartement heeft een betaalbare prijs van € 2.595 en biedt een fantastische kans om extra te genieten van het stadsleven. Mis het niet: plan vandaag nog een bezichtiging!


Kenmerken
Soort woning
Oppervlakte
117 m²
Kamers
4
Vloer
1
Gemeubileerd Vragen pictogram
Ja
Huisdieren toegestaan Vragen pictogram
Nee
Parkeren
Ja
Energie beoordeling
Niet beschikbaar
Bouwjaar
1928

Over deze woning
Maandelijkse huur
€ 2.595
Nutsvoorzieningen Vragen pictogram
€ 400
Borg
€ 2.595
Huurperiode
-
Beschikbare datum
-

Een fout opgemerkt in de advertentie?
Help ons Rentumo beter te maken - meld onjuiste informatie en we lossen het op.
Meld een probleem

FAQ

Krijg onbeperkt toegang tot alle details van alle zoekresultaten op Rentumo met een premium lidmaatschap. Klik hier om je aan te melden voor Rentumo Premium.

Je zoekt op 1-5 verhuurwebsites. Wij zoeken er meer dan 350 voor jou. Dagelijks vinden wij ruim 200 nieuwe woningen op alle websites. Je ontvangt elk uur meldingen met nieuwe matches. Je bespaart elke dag ruim 1 uur zoeken met Rentumo.

Meld u aan voor een zoekopdracht en ontvang meldingen, zodat u als eerste weet wanneer er nieuwe woningen op de markt komen. Klik hier om je GRATIS aan te melden.

Deze huuradvertentie is van een andere website gehaald, terwijl we 400+ websites in Nederland doorzoeken om alle advertenties in één handige zoekopdracht voor u samen te voegen. Wij doen al het zoekwerk met andere woorden voor u.

• Plan altijd een bezichtiging en spreek elkaar face-to-face. • Maak nooit geld over voordat je het appartement persoonlijk hebt gezien. • Deel geen persoonlijke gegevens voordat je de woning hebt bezichtigd. • Betaal pas als je een contract ondertekend hebt.

Als de woning al verhuurd is, het verkeerde adres heeft of onjuist lijkt - meld het dan hier.

We scannen dagelijks 386 huurwebsites, vinden dagelijks honderden nieuwe advertenties, om je snel meldingen te kunnen sturen.

Als er een probleem is, zullen we het snel bekijken - en je komt mogelijk in aanmerking voor een terugbetaling.

Meld hier een fout in de advertentie.

Locatie Alle appartementen te huur in Rotterdam
640 vergelijkbare huurwoningen
Bekijk alle 640 vergelijkbare resultaten

Heb je nog geen nieuwe woning gevonden?

  • Maak gratis zoekopdracht aan
  • +400 nieuwe woningen per dag
  • 7 van de 10 mensen die een nieuwe woning vonden, schreven zich in op onze Zoekopdracht
  • Je zoekcriteria

Rotterdam
€ 2.600/maand, min. 4 kamers

Maandelijkse huur
2.595
Contact
Logo Close
Home pictogram