Probeer zoveel mogelijk details te geven.
Bent u geïnteresseerd in deze woning? Neem in plaats daarvan hier contact op met de verhuurder.
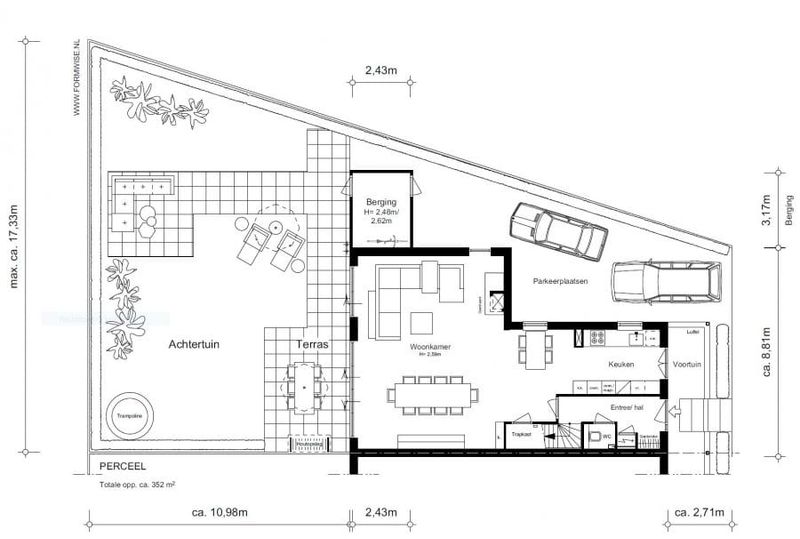
5 Kamers
-
Huis
180 m²
Gekopieerd