Probeer zoveel mogelijk details te geven.
Bent u geïnteresseerd in deze woning? Neem in plaats daarvan hier contact op met de verhuurder.
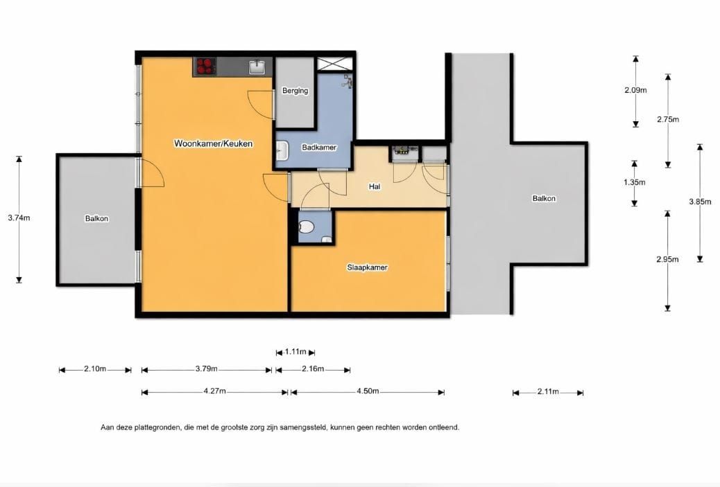
2 Kamers
-
Appartement
61 m²
Gekopieerd